
Potain MCT 205 Load Chart PDF + Specifications
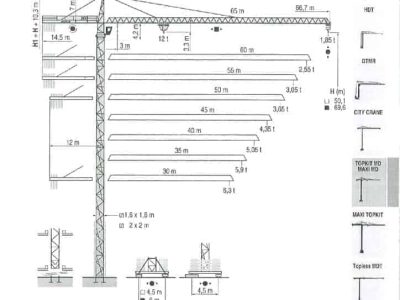
The Potain MCT 205 is a 10-ton topless tower crane, launched by Manitowoc at Bauma 2014 in Shanghai, China. Manufactured at Manitowoc’s Zhangjiagang factory, it is designed for fast delivery across Asia and optimized for high-rise construction, urban projects, and overlapping crane operations. Featuring a maximum working radius of 65 meters (213 feet) and variable frequency hoisting mechanisms, the MCT 205 provides precise load control, increased lifting efficiency, and enhanced flexibility for tight job sites. It is available with 1.6-meter and 2-meter mast options, both of which support internal floor climbing, allowing for greater adaptability in high-rise projects.
Download Load Chart Here
*Crane Specifications, Load Charts, and Crane Manuals are for reference only.
Contact the crane manufacturer for manuals to operate the crane properly.
Key Features & Benefits
The Potain MCT 205 represents the next generation of topless tower cranes, offering superior performance, faster erection times, and improved job site efficiency. Introduced at Bauma 2014 in Shanghai, the MCT 205 was developed and manufactured at Manitowoc’s Zhangjiagang factory in China, ensuring fast delivery and serviceability for the growing Asian market. This flat-top design eliminates the hammerhead structure, making it ideal for construction sites with multiple cranes, as it allows for easier overlapping operations and better space utilization.
With a maximum working radius of 65 meters (213 feet), the MCT 205 outperforms previous hammerhead models in terms of reach and load handling. Its variable frequency hoisting mechanisms ensure precise load positioning, smooth operation, and energy efficiency, making it a highly adaptable solution for modern construction challenges.
The crane is available with two mast configurations: 1.6 meters and 2 meters, allowing for customized setup based on project requirements. Both mast types support internal floor climbing, which is particularly useful for high-rise construction, as it allows the crane to be installed within the building structure, reducing space constraints and improving stability.
Compared to its predecessors, the MCT 205 offers faster and easier assembly, reducing downtime and labor costs. This, combined with its efficient lifting technology, optimized transportability, and strong topless design, makes it a preferred choice for contractors handling complex urban projects. With Manitowoc’s commitment to quality, reliability, and innovation, the Potain MCT 205 is a high-performance tower crane, delivering power, precision, and efficiency for the evolving construction industry.



1 review for Potain MCT 205
mohammed –
2018
Potain tower crane
MCT 205
10 tonne
cranepedia –
You can get the load chart here.