
Potain MD 185A H10
The Potain Topkit MD 185A H10 is a hammerhead tower crane designed for high-performance lifting, featuring a 10-tonne maximum capacity and a 60-meter jib with a tip load of 2.15 tonnes. Compatible with both 1.6m and 2m mast systems, this crane is well-suited for urban construction and infrastructure projects requiring strong lifting performance and tall freestanding heights.
Download Load Chart Here
*Crane Specifications, Load Charts, and Crane Manuals are for reference only.
Contact the crane manufacturer for manuals to operate the crane properly.
Product Description
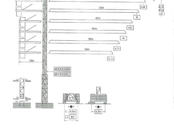
The Potain Topkit MD 185A H10 is a robust and high-capacity hammerhead tower crane that builds upon the established MD series. Designed for demanding construction sites, this crane delivers reliable lifting performance with a maximum lifting capacity of 10 tonnes and a working radius up to 60 meters. At its full jib length of 60 meters, the crane achieves a tip load of 2.15 tonnes, ideal for handling precast elements, structural steel, and heavy formwork over a broad coverage area.
The MD 185A H10 supports mast sections in both 1.6m and 2m formats, offering flexibility for various jobsite constraints and height requirements. With the 2m mast system (MD 185A H10), the crane can reach freestanding heights up to 66.4 meters using the V60A base. The 1.6m mast configuration also enables impressive freestanding setups with bases like the P41A, S40A, S41A, or ZD46A. The tower design allows mast stacking in increments of 5m and 10m, supported by concrete or steel foundations or rail systems.
Mechanically, the MD 185A H10 offers several hoisting options tailored for different site demands. The primary configurations include:
- 33PC25 winch rated at 33 hp (24 kW) with a hoisting speed of up to 46 m/min and rope capacity for up to 360 meters.
- 55RCS25 winch, delivering 55 hp (40.5 kW) and handling up to 560 meters of rope, ideal for 10-tonne loads with a max speed of 84 m/min.
- 50LVF25 variable frequency winch, rated at 50 hp (37 kW), capable of handling 611 meters of rope and speeds up to 78.2 m/min for optimal control under varying loads.
Trolleying is handled by the 5 D3 V4 system with a variable speed range from 15 to 58 m/min, providing smooth and responsive load movement along the jib. Slewing is managed by the RCV 145 system, using twin 6 hp motors to deliver rotation speeds of up to 0.7 rpm. For travel-mounted installations, the crane supports rail-mounted bases like RT 324, RT 443, and RT 544 systems, operating at travel speeds from 12.5 to 27 m/min.
The counter-jib uses modular ballast configurations tailored to different jib lengths, utilizing 2300 kg to 4600 kg slab weights, which help ensure overall structural balance. Electrically, the crane runs on 400V (+6%-10%) 50Hz power, requiring up to 80 kVA depending on the hoisting setup.
Additionally, the MD 185A H10 is well-equipped for internal climbing, using a B41 climbing frame, allowing it to grow with the building structure. The crane supports hook heights between 51 meters and 114 meters in such configurations, depending on the hoisting system installed.
The Potain MD 185A H10 is a refined balance of lifting strength, height, and structural adaptability, making it a reliable choice for residential towers, commercial high-rises, and infrastructure projects that require both capacity and height with minimal ground occupation. Its well-engineered winch options and robust tower compatibility ensure efficient and safe operation under diverse conditions.
Latest News


Top 10 Largest Rough Terrain Crane In The World

Top Largest Lattice Boom Truck Crane In The World

Reviews
There are no reviews yet.