
Potain MCT 85
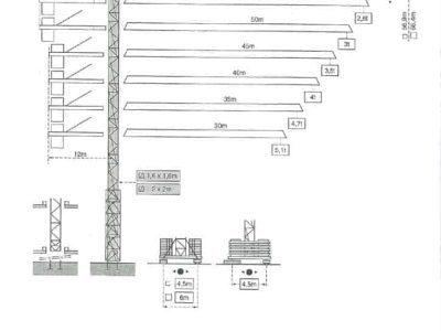
The Potain MCT 85 is a 5-ton capacity topless tower crane introduced by Manitowoc at Bauma Shanghai 2014. Featuring a maximum jib length of 52 meters and a tip load of 1.1 tons, it offers quick assembly with a one-piece counter-jib and tower head, and simple pin-connected jib sections. Designed for efficient setup and flexible operation, it’s ideal for urban and mid-rise construction sites.
Download Load Chart Here
*Crane Specifications, Load Charts, and Crane Manuals are for reference only.
Contact the crane manufacturer for manuals to operate the crane properly.
Product Description
Launched alongside its larger sibling, the MCT 205, at Bauma China 2014, the Potain MCT 85 is a 5-ton class topless tower crane designed for compact construction sites that require speed, versatility, and lifting efficiency. With a maximum jib length of 52 meters, the MCT 85 delivers a 1.1-ton capacity at the jib tip, making it well-suited for residential, commercial, and small-scale infrastructure developments.
Its topless design eliminates the traditional apex head, allowing for multiple cranes to operate in close proximity—a valuable feature on tight urban job sites. The counter-jib and tower head are engineered as a single component, significantly reducing assembly time and complexity. Likewise, the jib is constructed from modular pin-connected sections, making setup and dismantling faster and safer.
The MCT 85 offers a range of mast configurations and freestanding heights, enabling it to adapt to various site constraints. It is compatible with Potain’s MC and M mast systems, allowing seamless integration with existing fleets. The slewing, hoisting, and trolleying mechanisms are smooth and responsive, delivering precision control for material placement.
With its compact footprint, smart transport-friendly design, and performance-focused engineering, the Potain MCT 85 has quickly become a preferred solution for builders seeking reliable, easy-to-deploy lifting equipment for mid-rise and urban construction.
Latest News


Top 10 Largest Rough Terrain Crane In The World

Top Largest Lattice Boom Truck Crane In The World

Reviews
There are no reviews yet.