
Potain MD 235A J12
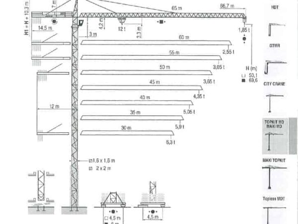
The Potain Topkit MD 235A J12 is a heavy-duty hammerhead tower crane with a maximum capacity of 12 tonnes and a maximum jib length of 65 meters. Featuring a 1.85-tonne tip load at full reach and modular mast compatibility (1.6 m and 2 m), it is engineered for large-scale construction with flexible freestanding heights and powerful winch options.
Download Load Chart Here
*Crane Specifications, Load Charts, and Crane Manuals are for reference only.
Contact the crane manufacturer for manuals to operate the crane properly.
Key Features & Benefits
The Potain Topkit MD 235A J12 is a powerful and adaptable hammerhead tower crane designed for high-capacity construction needs. Launched as part of Potain’s well-established MD series, this crane offers a robust maximum lifting capacity of 12 tonnes and can be fitted with a jib up to 65 meters in length. At its maximum reach, the MD 235A J12 maintains a tip load of 1.85 tonnes, making it highly effective for distributing heavy materials across wide construction zones.
This crane supports both 1.6-meter and 2-meter tower mast systems, offering great flexibility in adapting to different project heights and space limitations. With the 2-meter mast (P61A or V60A), the crane achieves freestanding heights up to 69.6 meters. Modular tower sections allow staged mast extension using 3.33 m elements, and the MD 235A J12 can be configured for internal climbing using standard climbing frames such as the B43A and ZD46A. This enables the crane to be used on high-rise buildings where vertical growth is required during construction.
The MD 235A J12 is equipped with a variety of winch systems depending on site requirements:
- The 55 RCS 30D winch delivers hoisting speeds up to 66 m/min and is powered by a 55 hp (40.5 kW) motor.
- The 50 LVF 30D is a variable frequency winch with 50 hp (37 kW), offering fine control and hoisting speeds from 3.5 to 66 m/min.
- The 75 LVF 30D is the most powerful hoist for this model, featuring a 75 hp (55 kW) drive with speeds up to 99 m/min and capacity for heavier loads at greater height, with a rope capacity exceeding 570 meters.
The trolley system uses a 6 D3 V4-2 drive for smooth travel along the jib with speeds adjustable between 10 and 50 m/min, depending on the reeving and payload. Slewing is driven by the RCV 185 dual-motor system, delivering 0.8 rpm with twin 9 hp motors for stable and responsive jib rotation.
The counter-jib ballast system is modular and adjusted depending on the jib length, with configurations using 4600 kg, 4200 kg, 3400 kg, and 2300 kg slabs. The crane base supports dimensions up to 6 meters depending on tower type, and various anchoring options (such as P41A and P61A) allow secure installation in different site conditions.
Electrical requirements include a 400V 50Hz power supply, with generator sets required to provide between 90 kVA (for the 55 RCS and 50 LVF) and 110 kVA (for the 75 LVF).
Base ballast values vary by height and configuration. For example, using the V60A tower base, the freestanding crane can reach up to 69.6 meters with a base ballast of 132 tonnes and a tower reaction of 120 tonnes.
Designed for productivity on demanding job sites, the Potain MD 235A J12 combines heavy lifting power, wide coverage, and efficient assembly through its modular system. Its precise trolleying, smooth slewing, and powerful hoisting options make it ideal for high-rise buildings, bridges, and heavy civil infrastructure projects where capacity and control are essential.



Reviews
There are no reviews yet.