
BPR-Cadillon ChronoFlash 35A Load Chart PDF + Specifications
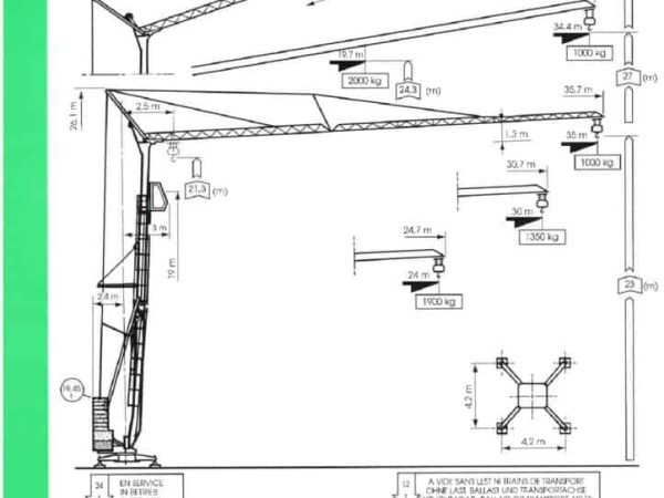
BPR-Cadillon ChronoFlash 35A is a 4-tonne self-erecting tower crane with a maximum jib length of 35m and a tipping load of 1 tonne.
Download Load Chart Here
somdn_product_page
*Crane Specifications, Load Charts, and Crane Manuals are for reference only.
Contact the crane manufacturer for manuals to operate the crane properly.



Reviews
There are no reviews yet.