
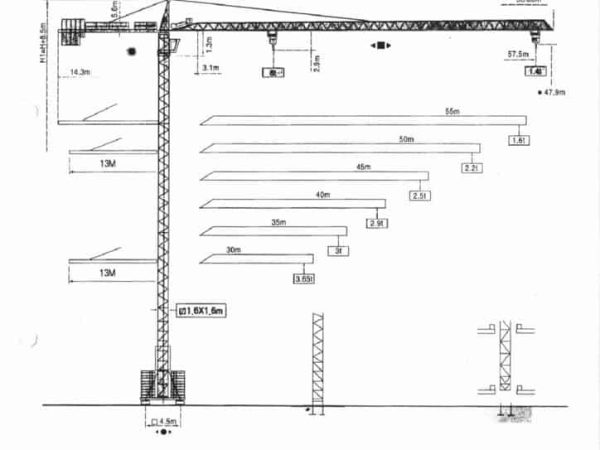
Potain MC 120A
Potain MC 120A is a 6-tonne hammerhead tower crane.
GET SPEC SHEET
somdn_product_page
*Crane Specifications, Load Charts, and Crane Manuals are for reference only.
Contact the crane manufacturer for manuals to operate the crane properly.




Reviews
There are no reviews yet.