
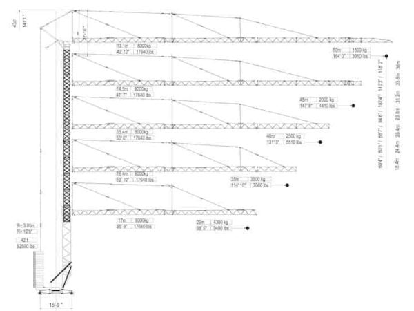
Arcomet A50 Eco Load Chart PDF + Specifications
Download Load Chart Here
somdn_product_page
*Crane Specifications, Load Charts, and Crane Manuals are for reference only.
Contact the crane manufacturer for manuals to operate the crane properly.


