
Favelle Favco M2480D
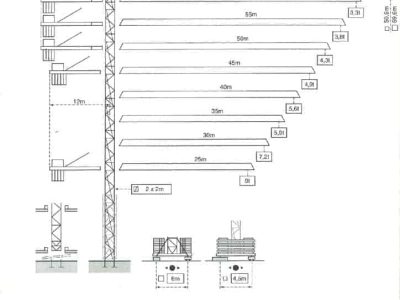
- Lifting capacity: 330 tonnes @ 14.4 m radius with 36.9 m boom
- Maximum boom length: 92.7 m
- Maximum lift at maximum radius: 20.6 tonnes @ 91.3 m
- Maximum freestanding hook height: 170 m
- Line pull: 55 tonnes, high-speed winch
- Winch speed: 95.5 m/min
- Heaviest component: Machinery deck front piece, including slew drive, pins and handrails 29.4 tonnes
- Tail swing radius: 11.9 m
- Can be statically mounted, rail mounted, or self-climbing
Download Load Chart Here
*Crane Specifications, Load Charts, and Crane Manuals are for reference only.
Contact the crane manufacturer for manuals to operate the crane properly.
Product Description
The heavy lift luffer built by Favelle Favco has a 330 tonne capacity at 14.5 m radius and can free stand up to 80 m. On a 4.3 metre-square tower the M2480D needs a ground area of 4 metres-square when erected on starter legs, or about the same area as two family cars parked side by side. The crane can also be set on a grillage or mounted on rails.
Comparing M2480D load charts against large mobile cranes reveals many areas where the big Favco out lifts 600-tonne capacity crawler cranes. These large crawlers can occupy 10 times more ground area than the new heavy-duty tower crane.
With a 55 tonne winch and maximum hook speed of 95 m/min, the M2480D is a fast crane. It can operate safely in wind speeds up to 20 m/sec. That is more than twice the allowable wind speed that large mobile cranes can legally work in. On projects where wind velocity affects the amount of useable crane time, large gains in time productivity are possible by using the giant tower crane.
Latest News


Top 10 Largest Rough Terrain Crane In The World

Top Largest Lattice Boom Truck Crane In The World
