
Raimondi MR81 Load Chart PDF + Specifications
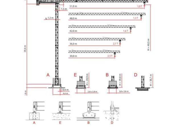
The Raimondi MR81 is a flat-top tower crane designed for medium-scale construction projects, featuring a maximum jib length of approximately 50 meters and a lifting capacity of around 5 to 6 tons. Its modular design and efficient load control system make it ideal for urban developments, residential buildings, and infrastructure projects where precision, stability, and ease of assembly are critical.
Download Load Chart Here
*Crane Specifications, Load Charts, and Crane Manuals are for reference only.
Contact the crane manufacturer for manuals to operate the crane properly.
Key Features & Benefits
The Raimondi MR81 is a flat-top tower crane engineered for reliability and efficiency in medium-sized construction projects. Designed with simplicity and high performance in mind, this crane offers a maximum jib length of approximately 50 meters, providing excellent coverage of the construction site while maintaining precise load control.
With a maximum lifting capacity of around 5 to 6 tons, the MR81 is suitable for handling heavy construction materials such as steel, precast concrete panels, and large structural elements. The high-performance hoisting system ensures smooth and efficient lifting operations, while the trolley mechanism allows for precise load positioning, enhancing overall site productivity.
The slewing system of the MR81 offers stable and controlled rotation, allowing for accurate load placement and easy maneuverability even in tight spaces. As a flat-top crane, it is ideal for sites with multiple cranes, as it eliminates the need for tie bars and facilitates quick assembly and disassembly.
The MR81 is equipped with advanced safety features, including overload protection, emergency stop systems, and wind load resistance, ensuring safe and reliable operations in various weather conditions. Additionally, its modern control system provides real-time feedback, improving operational efficiency and safety.
With Raimondi’s reputation for high-quality construction equipment, the MR81 flat-top tower crane is an excellent choice for contractors seeking a durable, compact, and high-performance lifting solution. Its combination of ease of use, stability, and adaptability makes it a valuable asset for modern construction sites.


