
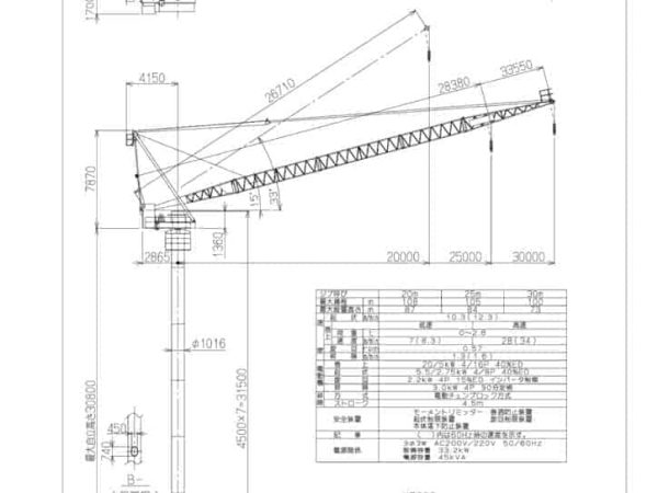
Kitagawa JCL030-3
Download Load Chart Here
somdn_product_page
*Crane Specifications, Load Charts, and Crane Manuals are for reference only.
Contact the crane manufacturer for manuals to operate the crane properly.
Product Description
Latest News


Top 10 Largest Rough Terrain Crane In The World
24 December 2025

Top Largest Lattice Boom Truck Crane In The World
24 December 2025
