
Kitagawa JCL040H Load Chart PDF + Specifications
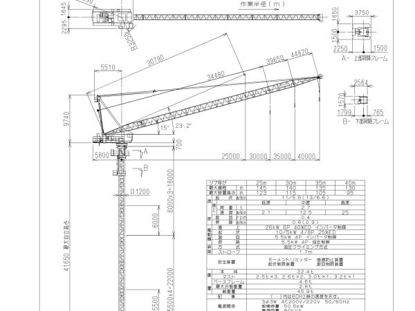
The JCL040H is a high-reliability hydraulic climbing tower crane developed for high-rise construction, featuring a simple structure, efficient lifting capabilities, and superior safety systems, with a maximum load capacity of 2.7 tons and a jib length ranging from 25 to 40 meters.
Download Load Chart Here
*Crane Specifications, Load Charts, and Crane Manuals are for reference only.
Contact the crane manufacturer for manuals to operate the crane properly.
Key Features & Benefits
The JCL040H is a member of the “Building Man” series of tower cranes and is designed specifically for high-rise construction using a hydraulic climbing mechanism. This crane stands out for its simplicity, ease of operation, and minimal installation footprint. Its modular construction allows for quick setup and disassembly, with all tasks operable from the rotating frame, contributing to a broader working area and greater efficiency on compact construction sites.
The crane supports various jib lengths including 25m, 30m, 35m, and 40m, with a maximum lifting capacity of 2.7 tons. Depending on the jib length, it can achieve a maximum lifting radius of 145 meters and a maximum tower height of 123 meters. The JCL040H features a three-speed hoisting system: low (2.1 m/min), medium (12.5 m/min), and high speed (25 m/min), while slewing operates at 0.4 rpm. The crane’s main hoisting winch is powered by a 26kW motor with inverter control and 40% duty rating.
The climbing operation uses a hydraulic system with a 1.7-meter stroke, offering quick and smooth vertical movement for floor-to-floor repositioning. Its vertical hoisting speed is 0.8 m/min (0.9 m/min at 60Hz). Elevation, slewing, and climbing functions are all driven by dedicated motors with inverter or hydraulic controls, ensuring precise and reliable motion.
For safety, the JCL040H comes equipped with advanced features including a moment limiter, overwind prevention system, hoisting and slewing limiters. The crane’s total weight is 45.9 tons, with the main body weighing 22.4 tons and additional mast sections contributing to the total. The electrical system operates on a 3-phase, 200V/220V AC power supply and requires a power capacity of 80 kVA.



Reviews
There are no reviews yet.