
Kitagawa JCL050C
Kitagawa JCL050C, one of the models in the Bilman series, is a high-quality and highly reliable crane with an integrated production system such as the crane body, winch, and control panel.
Download Load Chart Here
somdn_product_page
*Crane Specifications, Load Charts, and Crane Manuals are for reference only.
Contact the crane manufacturer for manuals to operate the crane properly.
Product Description
Features
- Hoisting speed 49m / min (1.1t or less)
- Inverter control is used for hoisting, undulation, and turning.
- Combined use of JCL030 type and mast
- There are two types of assembly bolts, M27 and M16.
- Transport is 4 units for 10t vehicles and 8 units for 4t vehicles
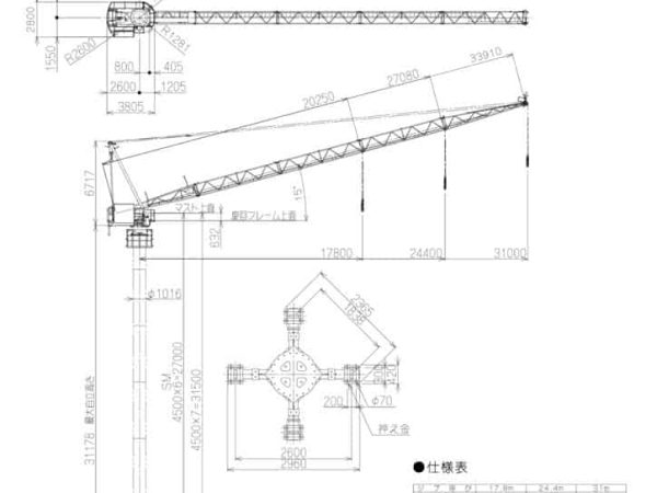
| Model | JCL050C | ||||||
|---|---|---|---|---|---|---|---|
| Jib length |
17.8m
|
24.4m
|
31m
|
||||
| Maximum lift * 1 | m |
110
|
105
|
100
|
|||
| Maximum installation height * 2 | m |
90
|
85
|
75
|
|||
| Turning angle |
360 °
|
||||||
| Speed of |
Winding up |
notch |
Slow
|
mid-speed
|
high speed
|
||
| load | t |
2.8
|
1.1
|
||||
| speed | m / s |
0.08
|
0.23
|
0.46
|
0.81
|
||
| m / min |
Five
|
14
|
28
|
49
|
|||
| Ups and downs | m / s |
0.13
|
0.19
|
0.25
|
|||
| s |
120
|
118
|
116
|
||||
| Turning | rad / s |
0.052
|
|||||
| rpm |
0.5
|
||||||
| Electric motion machine |
Winding up |
15kW 4P 40% ED Inverter control
|
|||||
| Ups and downs |
6.3kW 4P 40% ED Inverter control
|
||||||
| Turning |
2.2kW 4P 15% ED Inverter control
|
||||||
| Lifting and lowering |
3.5kW 60% ED
|
||||||
| Climbing method | method |
Electric chain block method
|
|||||
| stroke |
4.5m
|
||||||
| Safety device |
Overload prevention device Overload prevention device
Undulation limiter Swivel limiter Main body fall prevention device |
||||||
| Maximum split weight |
3.06t
|
||||||
| Power supply |
3φ 3W AC200V / 220V 50 / 60Hz
Equipment capacity 23.5kW Power supply capacity 30kVA |
||||||
Latest News


Top 10 Largest Rough Terrain Crane In The World
24 December 2025

Top Largest Lattice Boom Truck Crane In The World
24 December 2025

Reviews
There are no reviews yet.