
FM Gru 1140 RBI
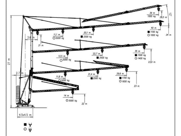
FM Gru 1140 RBI is a 5-tonnes self-erecting tower crane with a maximum jib length of 40m and a tipping load of 1.1 tonnes.
GET SPEC SHEET
somdn_product_page
*Crane Specifications, Load Charts, and Crane Manuals are for reference only.
Contact the crane manufacturer for manuals to operate the crane properly.




Reviews
There are no reviews yet.