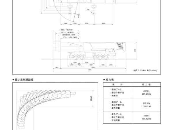
Kato NK3000 Load Chart PDF + Specifications

Kato NK3000 is a 300 ton Hydraulic Truck Crane.

Download Load Chart Here

somdn_product_page

*Crane Specifications, Load Charts, and Crane Manuals are for reference only.
Contact the crane manufacturer for manuals to operate the crane properly.

thumbnail of NK3000 spec mt ja

Key Features & Benefits

Reviews

There are no reviews yet.

Be the first to review “Kato NK3000”

Related Load Charts